PLUG & PLAY INVESTMENT: voll vermietet ... wertstabil ... stabile Rendite

Lage: 41069 Mönchengladbach-Holt | Nordrhein-Westfalen
Rückansicht
Garten
Treppenhaus
Stromkasten
Team
Für mehr Bilder und Angebote den QR-Code scannen
Mitglied im IVD
Energieskala

Beschreibung

RENDITESTARKE KAPITALANLAGE ... VOLLVERMIETET ... ATTRAKTIVE SUBSTANZ

Sichern Sie sich ein voll vermietetes Zweifamilienhaus mit attraktiver Substanz. Profitieren Sie von einem hohen Instandhaltungsstandard. Genießen Sie Dank dem hohen Mietniveau von einer attraktiven Performance.

Ein klassisches Plug-and-Play-Investment: Ankaufen, zurück lehnen, profitieren!
Mit zwei gut geschnittenen Wohneinheiten, einer großzügigen Garage und kontinuierlichen Instandhaltungsmaßnahmen präsentiert sich das Objekt als ideales Investment für ein langfristig orientiertes Portfolio.

Das Haus überzeugt durch eine klare Aufteilung und attraktive Außenflächen für jede Partei. Die Mieterstruktur ist stabil, die letzte Mietanpassung erfolgte erst im Jahr 2024. Dies unterstreicht die aktuelle Marktfähigkeit der Mieten.

Ihre Investitions-Highlights:

1. Geringes Leerstandsrisiko:
Dank der beliebten Wohnungsgrößen und vorhandener Außenflächen ist eine dauerhafte Vermietbarkeit gesichert.

2. Gepflegte Instandhaltung:
Das Baujahr 1958 wurde durch ständige Modernisierungen kompensiert. Mit den Teilsanierungen in 2013 und 2020 wurden die kostenintensivsten Gewerke bereits angegangen.

3. Attraktive Mietrendite:
Mit einer Bruttorendite von über 5 % bietet dieses Objekt im aktuellen Marktumfeld eine deutlich überdurchschnittliche Performance bei gleichzeitig hoher Substanzsicherheit.

Im Hinblick auf die Privatsphäre der Mieter können wir keine Innenaufnahmen veröffentlichen.

Austattungs­beschreibung

SICHERHEIT TRIFFT RENDITE

Sichern Sie sich ein vollvermietetes Zweifamilienhaus als wertstabiler Anker in Ihrem Portfolio!
Hier präsentiert sich eine Investment-Chance, die vom ersten Tag an Cashflow generiert und durch eine solide Instandhaltungshistorie überzeugt.

Das Investment-Profil: Sicherheit trifft Rendite
Die Immobilie ist vollständig vermietet und präsentiert sich in einem Zustand, der weit über dem Marktdurchschnitt vergleichbarer Objekte liegt.
Dank der Aufteilung in zwei vollwertige Wohnebenen profitieren Sie von einer krisensicheren Risikostreuung.

Fordern Sie unser umfangreiches Exposé mit detaillierten Angaben zur Ausstattung und Vermietung an. Überzeugen Sie sich von einem klassischen Plug&Play-Investment.

Lage und Verkehrsanbindung

IN MÖNCHENGLADBACHS WESTEN ... ZENTRAL ... GUTE ANBINDUNG

Der Stadtteil Holt befindet sich im Zentrum Mönchengladbachs und gehört dem Stadtbezirk West an.

Holt gliedert sich in die Ortsteile Hehnerholt, Holt und Engelsholt. Die Bundesstraße B57 als Aachener Straße trennt die Ortsteile Hehnerholt und Holt im Norden des Stadtteils und Engelsholt im Süden.

Das Zentrum von Holt wird durch die kath. Kirche St. Michael und dem Nahversorgungszentrum Holt-Mitte an der Aachener Straße gebildet.

In der unmittelbaren Nähe liegt der Nordpark mit einem kleinen Einkaufszentrum mit Supermärkten, Bäckerei, Discounter und Drogeriemarkt. Zudem gibt es mehrere Sport- und Freizeitanlagen wie den Borussia-Park und den Hockeypark.

Die Buslinien 014, 015, 017 und 025 fahren den Stadtteil an.
Hier sind Sie perfekt angebunden. Nur einige Fahrminuten bis zur A 61.

Ihre Investment-Immobilie liegt in einer ruhigen Seitenstraße mit klassischen Ein- und Zweifamilienhäusern.

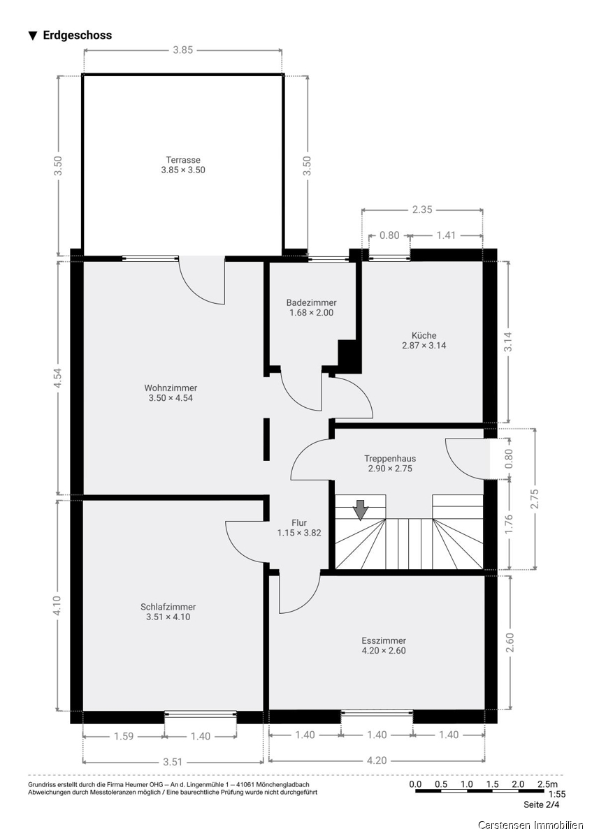
Lagepläne

Plan 0

Fakten

Objektnummer:
12529
Objekttyp:
Haus
Balkon:
1
Terrasse:
1
Wohnfläche:
162,19 m²
Grundstücksfläche:
537 m²
Zimmer:
8
Bad:
3
Baujahr:
1958
Verfügbarkeit:
Verfügbar

Preisdetails

Kaufpreis:
315.000,00 €
Provision:
3,57 % Käuferprovision v. beurkundeten Kaufpreis inkl. MwSt.

Energieeffizienz

Endenergiebedarf:
127.00 kWh/(m²*a)
Energieeffizienzklasse:
D
Wesentliche Energieträger:
Oel
Baujahr laut Energieausweis:
2008
Ausstellung:
ab dem 1.5.2014
Energieausweisart:
Energieverbrauchsausweis
Gültig bis:
27.01.2036

Ansprechpartner

Arno Carstensen
Anfrage
Max. 500 Zeichen