AUS ALT MACH NEU ... JETZT SIND SIE DRAN ... HAUS-TUNING GEFORDERT

Lage: 41066 Mönchengladbach | Nordrhein-Westfalen
Eingang
Wohnzimmer EG
Überdachter Freibereich
Rückansicht
Badezimmer Bild 2
Küche
Team
Mitglied im IVD
Energieskala

Beschreibung

AUS ALT MACH NEU ... JETZT SIND SIE DRAN ... HAUS-TUNING GEFORDERT

Eine Immobilie, die sicherlich in die Jahre gekommen ist und auf neue Wohnideen wartet. Hier können Sie Ihr persönliches Schmuckstück herausputzen und ein komfortables Heim schaffen, das Ihren ganz persönlichen Wohnansprüchen gerecht wird.

Entdecken Sie Ihre Vorteile! Ein Haus mit Geschichte und interessanten Stilelementen. Bringen Sie alte Schätze wieder zur Geltung und verbinden Sie historische Stilelemente mit modernem Wohnkomfort.

Wer nicht zwei linke Hände hat und die Möglichkeiten erkennt, wird hier mit einer Muskelhypothek in kurzer Zeit ein Schmuckstück aus dem Dornröschenschlaf wecken.
Denn hier findet der phantasievolle Praktiker endlich sein Projekt mit dem er sich selber verwirklichen kann und Anerkennung finden wird.

Ein Abstellplatz für Auto, Motorrad, Anhänger, Wohnwagen, Wohnmobil ist direkt neben dem Haus vorhanden.

Befreien Sie diese Wohnimmobilie aus dem Dornröschenschlaf und entwickeln Sie Ihr persönliches Reich! Hier können Sie sich und anderen etwas beweisen.

Austattungs­beschreibung

HAUS MIT GESCHICHTE … UND ERNEUERUNGSBEDARF

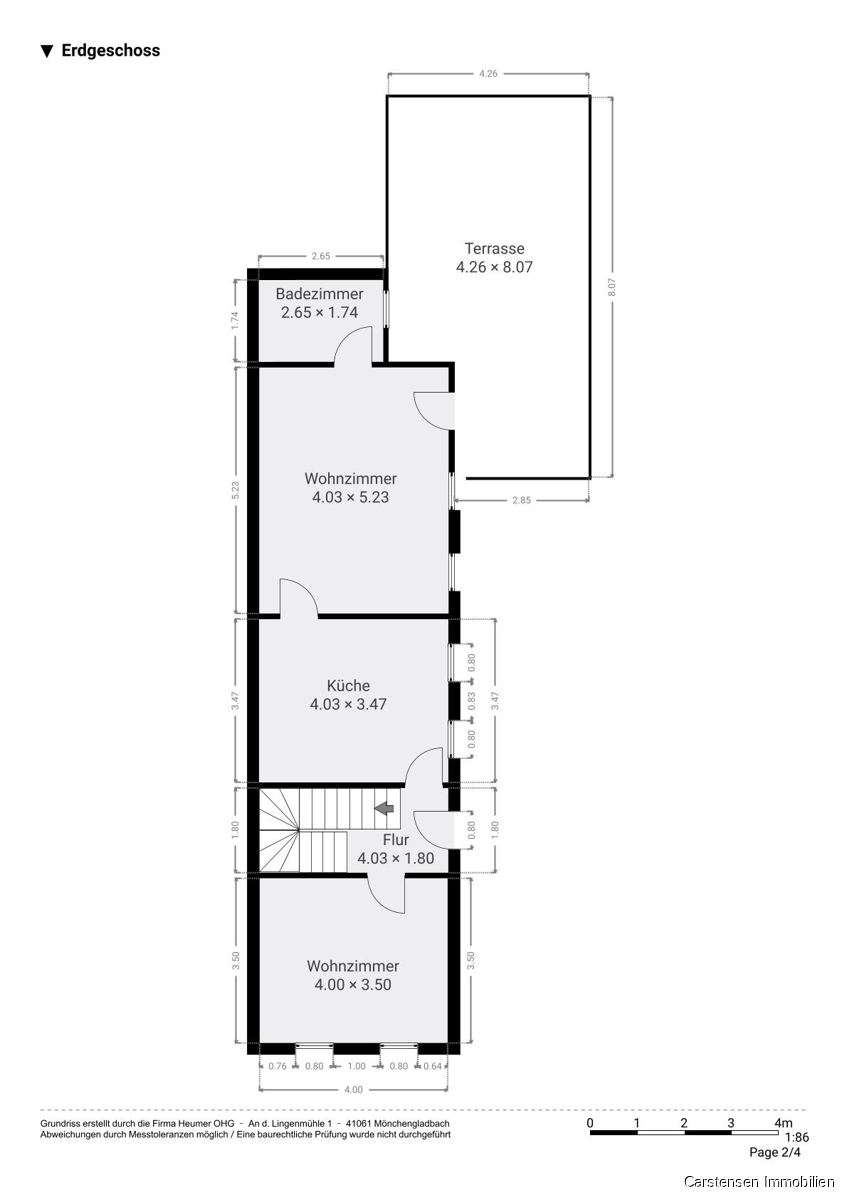
Das Haus bietet ein klassisches, familiengerechtes Wohnkonzept mit mehreren Ebenen, einem Anbau und insgesamt fünf Zimmern, ergänzt um praktische Nebenflächen. Der Grundriss ermöglicht aktuell eine klare Trennung von Wohnbereichen und Rückzugsräumen.

Im Erdgeschoss befinden sich die Küche mit Platz für einen Essbereich als Durchgangszimmer, das Wohnzimmer, sowie ein Badezimmer und ein Schlaf- Kinder- oder Arbeitszimmer. Die weiteren Zimmer verteilen sich auf die erste Etage und eignen sich je nach Bedarf als Schlaf-, Kinder-, Arbeits- oder Gästezimmer. Im Dachgeschoss steht zusätzliche Nutzfläche zur Verfügung, die sich als Abstellbereich oder für ergänzende Nutzungen als Kellerersatz anbietet.

Zum Haus gehören ein Garten sowie ein großer überdachter Freibereich, der als wettergeschützter Sitzplatz oder als praktische Erweiterung des Außenbereichs genutzt werden kann. Die Einfahrt bietet Stellfläche auf dem Grundstück. Ergänzend stehen Nebenräume wie ein Wasch- und ein Abstell oder Handwerkerraum sowie ein separater Heizungsraum zur Verfügung, was die Organisation des Alltags und die Lagerung von Geräten und Vorräten erleichtert.

Die Immobilie bietet eine solide Basis mit gut nutzbaren Innen und Außenflächen und eröffnet Spielraum für eine zeitgemäße Weiterentwicklung nach individuellen Anforderungen.

Lage und Verkehrsanbindung

MIKRO-LAGE ... NEUWERK

Ihre neue Immobilie ist gut angebunden. Der öffentliche Nahverkehr ist durch die Bushaltestelle in unmittelbarer Nähe gesichert.
Für den Individualverkehr ist die Anbindung an die Autobahnen über die A44 und die A52 optimal gegeben. Der Flughafen Mönchengladbach ist im Stadtbezirk Ost gelegen und mit dem Auto in wenigen Minuten erreichbar; der Flughafen Düsseldorf ist als internationales Drehkreuz in der Region ebenfalls gut über die A 52 erreichbar.

Die Umgebung bietet eine alltagstaugliche Mischung aus Wohnen und Gewerbe, ruhigen Nebenstraßen und kurzen Wegen zu Grünflächen.

Bildungs- und Betreuungsangebote sind ortsnah erreichbar. Kindergärten, Grundschule und eine weiterführende Schule liegen in der näheren Umgebung.

Auch Geschäfte für den täglichen Bedarf sind gut erreichbar, sowie das Krankenhaus Neuwerk, Banken und Restaurants.

Lagepläne

Plan 0

Fakten

Objektnummer:
12038
Objekttyp:
Haus
Terrasse:
1
Wohnfläche:
102,1 m²
Nutzfläche:
25,43 m²
Grundstücksfläche:
564 m²
Zimmer:
5
Schlafzimmer:
3
Bad:
1
Baujahr:
1936
Zustand:
Sanierungsbedürftig
Verfügbarkeit:
Verfügbar

Preisdetails

Kaufpreis:
189.000,00 €
Provision:
3,57 % Provision vom beurkundeten Kaufpreis inkl. MwSt. sowohl vom Käufer als auch vom Verkäufer.

Energieeffizienz

Endenergiebedarf:
298.80 kWh/(m²*a)
Energieeffizienzklasse:
H
Wesentliche Energieträger:
Gas
Baujahr laut Energieausweis:
2002
Ausstellung:
ab dem 1.5.2014
Energieausweisart:
Energiebedarfsausweis
Gültig bis:
04.09.2033

Ansprechpartner

Birgit Carstensen
Anfrage
Max. 500 Zeichen